忍者ブログ

プロが教える空室対策!

㈱レント管理サービス 受託課の活動報告や日常の出来事を紹介するスタッフ日記です!

[PR]

×

[PR]上記の広告は3ヶ月以上新規記事投稿のないブログに表示されています。新しい記事を書く事で広告が消えます。

変わりつつある賃貸住宅の間取り

築年数の経った建物。

取壊して〝建替える〟か、リノベーションをして〝再生〟させるか。

今後、このような悩みを抱えていく賃貸住宅は増えていくことが予想されます。


今回は、その〝再生〟のお話。

先日、ある建築家の方に招かれ、完成見学会に伺いました。

その時の室内写真がこちら。

http://blog.cnobi.jp/v1/blog/user/22d6dbc591e14e7492345a8795d2a4c9/1353843538

http://blog.cnobi.jp/v1/blog/user/22d6dbc591e14e7492345a8795d2a4c9/1353843539

http://blog.cnobi.jp/v1/blog/user/22d6dbc591e14e7492345a8795d2a4c9/1353843540

築年数 : 1980年03月

規模・構造 : 鉄筋コンクリート造 6階建て

専有面積 : 74㎡

間取り : 3LDK (間仕切りを使い、1Rから3LDKまで可変式)

設計監理:イカダ・デザイン・アトリエ(idea inc.) & 清水建築設計店(S.A.W.)


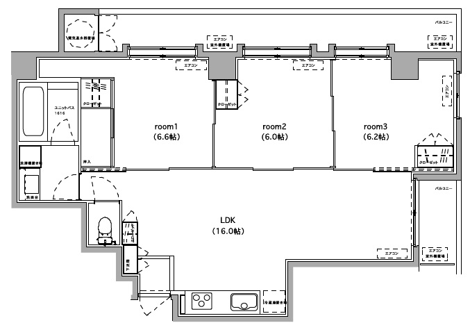
ちなみに間取り図はこのようになっています。

http://blog.cnobi.jp/v1/blog/user/22d6dbc591e14e7492345a8795d2a4c9/1353844459

すべての間仕切りを開放すると、とてつもなく広いワンルームに。

また、夫婦のみの場合は、1LDKに。

夫婦+子供の場合は、2LDKに。

子供が2人になったら、3LDKに。



ただでさえ、追加投資が必要な再生事業である〝リノベーション〟ですが、

このように幅広いニーズに対応できる間取りであれば、

長期的な視点で考えた時にも、安心できるのではないでしょうか。


賃料の下落が叫ばれ、身動きがとりにくい時代ですが、

一方では、このようなカタチで動き出しているオーナー様もいる。


是非とも参考にしていただきたい、と思います。





京王線 / 井の頭線 / 中央線 / 小田急線沿線 多店舗展開中
株 式 会 社 レ ン ト 管 理 サ ー ビ ス ■
本社:東京都府中市府中町2-1-7
TEL : 042-314-6601
賃 貸 不 動 産 経 営 管 理 士
  坂 田 直 哉



PR

コメント

お名前
タイトル
文字色
メールアドレス
URL
コメント
パスワード Vodafone絵文字 i-mode絵文字 Ezweb絵文字

トラックバック

TIME

ブログ内検索

カウンター

レント管理サービス

プロフィール

HN:
㈱ レント管理サービス 受託課
HP:
性別:
非公開
職業:
建物総合管理
趣味:
オーナー宅訪問

掛け軸

blopa!マンション

カレンダー

10 2025/11 12
S M T W T F S
1
2 3 4 5 6 7 8
9 10 11 12 13 14 15
16 17 18 19 20 21 22
23 24 25 26 27 28 29
30

株式・株価・為替

SUUMO

不動産・住宅サイトSUUMO(スーモ)

SUUMOジャーナル

忍者アナライズ